Haus im Hafen von Jávea zu verkaufen

550.000 €

90m2,
3 rooms,
2 Badezimmer,
Terrasse

Hafen, Jávea/Xàbia | Haus – REF. V-1570

Casa La Marina

Eine einzigartige Immobilie im Hafen von Jávea

Nur 30 Meter vom Meer entfernt, direkt an der Promenade

Es gibt gute Lagen… und dann gibt es diese.

Casa La Marina befindet sich im Herzen des Hafens von Jávea, nur 30 Meter vom Meer entfernt und direkt an der Promenade. Ein Ort, an dem sich das Leben draußen abspielt, alles fußläufig erreichbar ist und jeder Quadratmeter zählt.

Derzeit als Büro genutzt, ist dieses Reihenhaus in Wahrheit eine leere Leinwand mit solider Grundlage. Ein Objekt mit Charakter, bereit für etwas ganz Besonderes.

Umgeben von Restaurants, Geschäften und allen wichtigen Einrichtungen bietet Casa La Marina eine außergewöhnliche Gelegenheit, ein individuelles Zuhause oder ein professionelles Projekt in einer der begehrtesten Lagen von Jávea zu realisieren.

Die Immobilie erstreckt sich über zwei Hauptetagen plus eine obere Ebene, mit vorhandenen Plänen und bereits ausgearbeiteten Renovierungsoptionen. Alles ist vorbereitet — die Entscheidung liegt bei Ihnen.

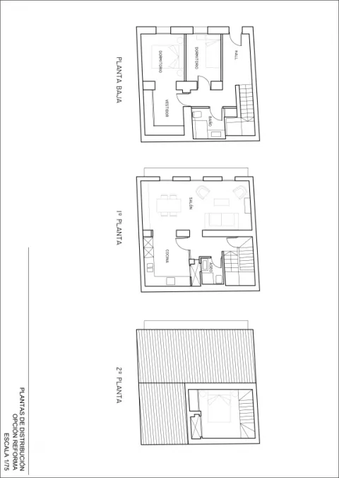
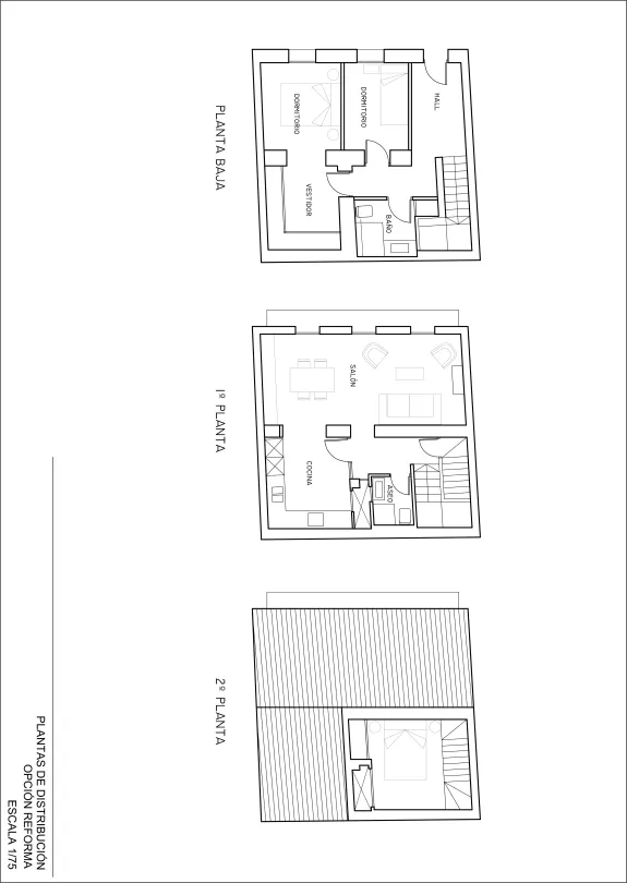
Aktuelle Aufteilung

Erdgeschoss

Ein großzügiger Eingangsbereich führt zu zwei straßenseitigen Räumen mit viel Potenzial sowie zu einem Gäste-WC mit Möglichkeit zur Dusche. Ideal als Arbeitsbereich, Praxis, Studio oder Wohnraum.

Erstes Obergeschoss

Zwei Räume und ein vollständiges Badezimmer. Diese Etage lässt sich ideal in einen hellen Wohn- und Essbereich mit separater Küche umgestalten.

Zweite Etage

Offener Raum, derzeit als Abstellfläche genutzt, mit Potenzial für ein zusätzliches Schlafzimmer, ein privates Büro oder einen vielseitigen Mehrzweckraum.

Warum Casa La Marina besonders ist

  • Erstklassige Lage, nur Schritte vom Meer und der Promenade entfernt
  • Echte Flexibilität mit realistischen Nutzungsmöglichkeiten
  • Umgestaltungspotenzial, bereits durchdacht
  • Hohe Sichtbarkeit, ideal für Wohnen oder Gewerbe
  • Die Möglichkeit, Investition, Lebensstil und Lage zu vereinen

Zukunftsperspektiven

  • Gestaltung von Casa La Marina als maßgeschneidertes Wohnhaus mit bis zu drei Schlafzimmern in einzigartiger Lage.
  • Umbau zu einem Gewerberaum oder Büro, mit hoher Passantenfrequenz.
  • Entwicklung eines Wohn- und Arbeitskonzepts, ideal für Leben und Arbeiten unter einem Dach.

Diese Immobilie ist nicht für jeden.

Sie ist für Menschen, die den wahren Wert dieser Lage erkennen.

Für jene, für die das Meer kein Extra, sondern Lebensart ist.

Casa La Marina lässt sich nicht erklären. Man erlebt sie.

???? Kontaktieren Sie uns für weitere Informationen oder zur Vereinbarung eines Besichtigungstermins.

Diese Immobilie ist Teil der exklusiven Auswahl von MORAGUESPONS Mediterranean Houses, Spezialisten für Luxusvillen in Jávea. Eine Kollektion von Häusern, in denen Lage, Licht und mediterraner Lebensstil aufeinandertreffen, um eine einzigartige Immobiliengelegenheit an der Costa Blanca zu schaffen.

Terrasse
West
Heizung
Klimaanlage
Alarm
Sehr guter Zustand
1965
EPC: In Bearbeitung

(*) Diese Informationen können Irrtümer enthalten und sind nicht Bestandteil eines Vertrages Das Angebot kann ohne Ankündigung geändert oder zurückgezogen werden. Der Preis beinhaltet nicht die Kosten für den Kauf.

Standort auf der Karte und umliegende Dienstleistungen

Hafen