• Verkocht

Apartamento en la playa del Arenal, Jávea

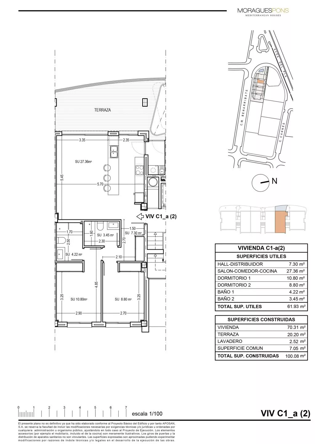
100m2,
2 kamers,
2 Badkamers,
Zwembad

Montañar – El Arenal, Jávea/Xàbia | Appartement – REF. Terrazas C1A

Residencial Las Terrazas, cuenta con 16 viviendas distribuidas en 6 plantas bajas, 6 plantas primeras y 4 áticos. Las plazas de parking y trasteros situados en la planta sótano son opcionales. Los Bajos se caracterizan por sus grandes jardines y los áticos por los solariums.

Se puede decir que este residencial tiene experiencia y obsesión por el cuidado de los detalles y los acabados; El resultado son apartamentos en Jávea con un diseño muy especial y unos ambientes y zonas que invitan a disfrutar de la vida en Jávea. Residencial Las Terrazas está pensado para vivir en familia y con todo lujo de detalles, tales como:

Garaje y trasteros , con acceso directo a planta desde ascensor, la Piscina con iluminación exclusiva, para adultos y niños. Amplias terrazas en todas las viviendas, orientadas a la zona de los huertos y al Montgó. Áticos espectaculares con solarium. Bajos con zonas ajardinadas. Urbanización privada con zona ajardinada perimetral. Diseño arquitectónico muy cuidado en formas, acabados y detalles.

La localización es excepcional, cerca de todo lo importante, como por ejemplo el Club de Tenis y el canal de La Fontana. A un paseo de la playa y de los restaurantes del paseo marítimo de la playa del Arenal de Jávea. Y con el laberinto de los caminos de los huertos y los campos de naranjos que se extienden hasta el Montgó.

Si hablamos de áticos, hablamos de terrazas: En los áticos, todos los ambientes dan al exterior, ya sea con amplios ventanales o a las terrazas, inundando con la luz de Jávea el salón, la cocina y los dormitorios. Las cocinas americanas, aumentan, si cabe, esa sensación de amplitud y la luminosidad.

Y si hablamos de bajos, hablamos de jardines: De la terraza al jardín y desde el jardín a la terraza. Más que una vivienda en Jávea, un estilo de vida abierto al exterior.

Los bajos con jardín permiten que cada vivienda tenga una zona verde privativa, y las terrazas opuestas permiten elegir un momento de sol o de sombra para desayunar, comer o cenar.

Zwembad
Terras
Tuin
Garage
Opslagruimte
Zuid, West
Vloer
Airconditioning
Alarm
Video-intercom
Nieuw of tweedehands
2024
EPC: In behandeling

(*) Deze informatie kan fouten bevatten en maakt geen deel uit van een contract. Het aanbod kan zonder voorafgaande kennisgeving worden gewijzigd of ingetrokken. De prijs is exclusief de aankoopkosten.

Plan

Plan 1
Montañar – El Arenal