Une maison à quelques mètres de la mer 450.000 €
 
                        Residencial Las Terrazas compte 16 logements répartis sur 6 rez-de-chaussée, 6 premiers étages et 4 penthouses. Les places de stationnement et les pièces de rangement situées au sous-sol sont facultatives. Les rez-de-chaussée sont caractérisés par leurs grands jardins et les penthouses par leurs solariums.
On peut dire que cette résidence a l'expérience et l'obsession du soin des détails et des finitions ; le résultat est des appartements à Jávea avec un design très spécial et des atmosphères et des zones qui vous invitent à profiter de la vie à Jávea. Residencial Las Terrazas est conçu pour une vie de famille et avec tout le luxe des détails, tels que :
Garage et débarras, avec accès direct au rez-de-chaussée depuis l'ascenseur, la piscine avec éclairage exclusif, pour adultes et enfants. Grandes terrasses dans toutes les propriétés, donnant sur les vergers et le Montgó. Penthouses spectaculaires avec solarium. Appartements au rez-de-chaussée avec jardin. Urbanisation privée avec zone de jardin périphérique. Conception architecturale avec un grand soin des formes, des finitions et des détails.
L'emplacement est exceptionnel, à proximité de tout ce qui est important, comme le club de tennis et le canal de La Fontana. À quelques pas de la plage et des restaurants de la promenade de la plage Arenal de Jávea. Et avec le labyrinthe de chemins de vergers et d'orangeraies qui s'étend jusqu'au Montgó.
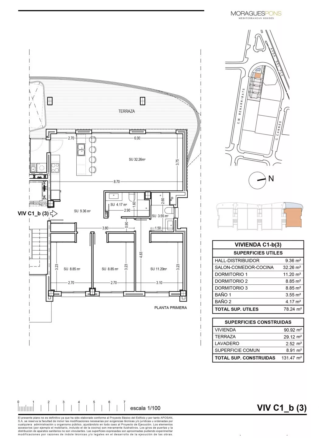
Si nous parlons de penthouses, nous parlons de terrasses : dans les penthouses, toutes les pièces s'ouvrent sur l'extérieur, soit par de grandes fenêtres, soit sur les terrasses, inondant le salon, la cuisine et les chambres de la lumière de Jávea. Les cuisines américaines augmentent, si possible, cette sensation d'espace et de luminosité.
Et si nous parlons de rez-de-chaussée, nous parlons de jardins : de la terrasse au jardin et du jardin à la terrasse. Plus qu'une maison à Jávea, un style de vie ouvert sur l'extérieur.
Les appartements du rez-de-chaussée avec jardin permettent à chaque maison d'avoir son propre espace vert privé, et les terrasses en vis-à-vis vous permettent de choisir un moment de soleil ou d'ombre pour le petit-déjeuner, le déjeuner ou le dîner.
(*) Ces informations peuvent contenir des erreurs et ne font pas partie d'un contrat L'offre peut être modifiée ou retirée sans préavis. Le prix ne comprend pas les frais d'achat.
