• Gereserveerd

Vivienda en planta baja con terraza en Javea

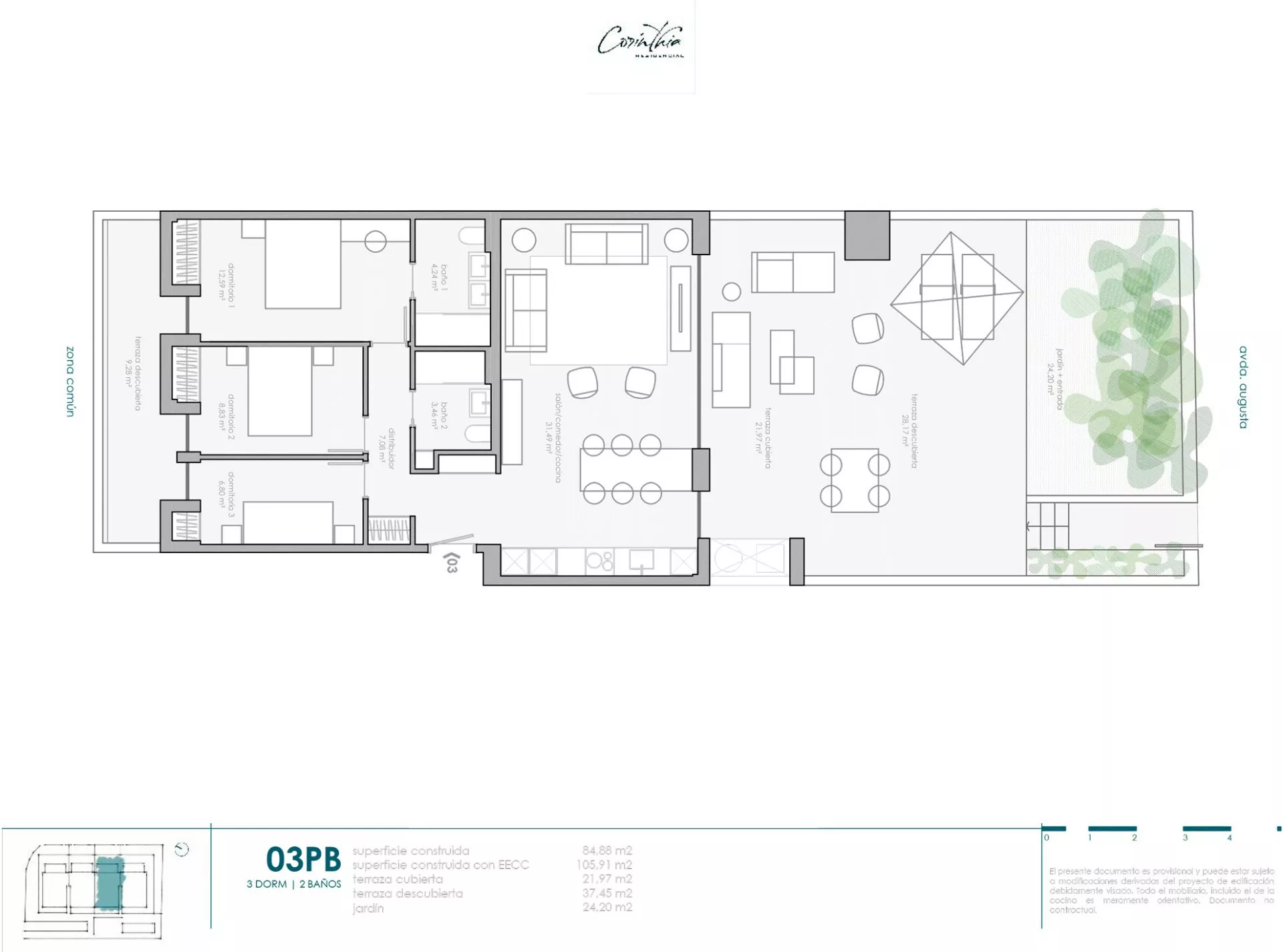
395.000 €

107m2,
3 kamers,
2 Badkamers,
Zwembad

Montañar – El Arenal, Jávea/Xàbia | Begane grond – REF. Corinthia 3

memoria de calidades

Estructura

Estructura de hormigón armado, según especificaciones del proyecto, de acuerdo con el código técnico de

la edificación y normativa de aplicación.

_cubierta

Cubierta-Solárium plana transitable, acabada en piezas cerámicas antideslizantes de gran formato de

primeras marcas.

_fachada

Fachada trasventilada acabada revestimiento continuo de cal fino, aislada térmica y acústicamente por

encima de los requerimientos del código técnico de la edificación.

_carpintería exterior

Carpintería exterior de aluminio lacado color a determinar por la dirección facultativa, con rotura de puente

térmico.

Doble acristalamiento con cámara intermedia, protección solar y acústica donde fuera necesario.

_carpintería interior

Puerta de acceso a la vivienda acorazada con cerradura de seguridad y acabado interior igual que el resto

de la carpintería.

Puertas de paso lacadas en blanco, según memoria del proyecto.

Armarios empotrados lacados, forrados y equipados interiormente con cajoneras, barra de colgar y balda

maletero. Puertas abatibles según memoria del proyecto.

_tabiquería

Separación entre viviendas con fábrica cerámica, trasdosado autoportante en ambas caras con aislamiento

y doble placa de yeso laminado.

Divisiones interiores mediante tabiquería autoportante de placa de yeso laminado dotadas de aislamiento

interior acústico y térmico.

Falso techo de placas de yeso laminado.

_solados

Solado interior de toda la vivienda, en porcelánico de gran formato de primeras marcas.

En baños y cocinas, porcelánico de primeras marcas.

Solados exteriores transitables en porcelánico de gran formato de primeras marcas.

En garajes, pavimento en hormigón con acabado de pintura epoxi, delimitación de aparcamiento con banda

de separación en pintura color.

_revestimiento de paredes

Paramentos en pintura plástica lisa en toda la vivienda. En baños, aseos y cocinas material cerámico de gran

formato de primeras marcas.

_aparatos sanitarios

Baños con inodoros suspendidos o a suelo con cisterna empotrada, lavabos de ROCA modelo MERIDIAN o

similar.

Plato de ducha y bañera acrílicos con mampara. El plato de ducha y la bañera serán de la marca ROCA

modelo NEO DAIQUIRI o similar.

Mueble con lavabo en baño principal y secundario de la marca ROCA modelo UNIK o similar.

Grifería monomando de la marca ROCA modelo NAIA o similar.

.

_instalaciones

Sistema basado en AEROTERMIA para la producción de agua caliente sanitaria.

Sistema de climatización con bomba de frio y calor por conductos.

Instalación de telecomunicaciones con conexión en todas las estancias a excepción de zonas húmedas.

-otros

Accionamiento de persianas motorizadas. Interruptor para la centralización de persianas.

Control vía telefónica de encendido y apagado de climatización.

En garaje, preinstalación para toma de carga de coches eléctricos.

Mecanismos eléctricos de primera calidad marca JUNG modelo LS990 o similar.

_cocinas

Totalmente amuebladas y equipadas con electrodomésticos de BOSCH o similar, que incluyen placa de

cocina vitrocerámica, campana extractora, horno eléctrico, microondas, frigorífico combi, lavavajillas y

lavadora.

Encimera y remates en SILESTONE o similar.

_varios

Elementos comunes: videoportero automático, buzones con posibilidad de entrega de paquetería,

numeración de plantas, zaguanes y viviendas, cuarto de limpieza, etc.

_zonas comunes

Ascensores normalizados OTIS o similar con acceso directo al aparcamiento.

Piscina comunitaria.

Zwembad
Terras
Garage
Opslagruimte
Oost
Warmtepomp
Airconditioning
Video-intercom
Nieuw of tweedehands
2021
EPC: In behandeling

(*) Deze informatie kan fouten bevatten en maakt geen deel uit van een contract. Het aanbod kan zonder voorafgaande kennisgeving worden gewijzigd of ingetrokken. De prijs is exclusief de aankoopkosten.

Deze woning maakt deel uit van een nieuwbouwproject

Montañar – El Arenal