Ein Haus nur wenige Meter vom Meer entfernt 450.000 €
 
                        435.000 €
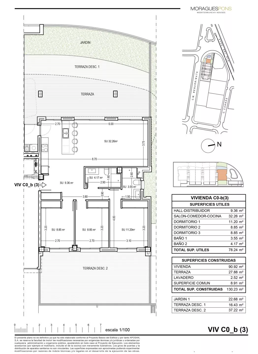
Residencial Las Terrazas verfügt über 16 Wohnungen, die sich auf 6 Erdgeschosse, 6 Obergeschosse und 4 Penthäuser verteilen. Die Parkplätze und Lagerräume im Untergeschoss sind optional. Die Erdgeschosse zeichnen sich durch ihre großen Gärten und die Penthäuser durch ihre Solarien aus.
Man kann sagen, dass diese Wohnanlage Erfahrung und Besessenheit für die Pflege von Details und Ausführungen hat; das Ergebnis sind Wohnungen in Jávea mit einem ganz besonderen Design und Atmosphären und Bereichen, die dazu einladen, das Leben in Jávea zu genießen. Residencial Las Terrazas ist für das Leben mit der Familie konzipiert und mit allen luxuriösen Details ausgestattet, wie zum Beispiel:
Garage und Abstellräume, mit direktem Zugang zum Erdgeschoss vom Aufzug, das Schwimmbad mit exklusiver Beleuchtung, für Erwachsene und Kinder. Große Terrassen auf allen Grundstücken, mit Blick auf die Obstgärten und den Montgó. Spektakuläre Penthäuser mit Solarium. Wohnungen im Erdgeschoss mit Gartenbereich. Private Urbanisation mit umliegendem Gartenbereich. Architektonische Gestaltung mit großer Sorgfalt bei Formen, Oberflächen und Details.
Die Lage ist außergewöhnlich, in der Nähe von allem, was wichtig ist, wie dem Tennisclub und dem La Fontana-Kanal. Nur einen kurzen Spaziergang vom Strand und den Restaurants an der Promenade des Arenal-Strandes von Jávea entfernt. Und mit dem Labyrinth aus Obstgärten und Orangenhainen, das sich bis zum Montgó erstreckt.
Wenn wir von Penthäusern sprechen, sprechen wir von Terrassen: In den Penthäusern öffnen sich alle Räume nach außen, entweder mit großen Fenstern oder auf die Terrassen, die Wohnzimmer, Küche und Schlafzimmer mit dem Licht von Jávea durchfluten. Amerikanische Küchen verstärken, wenn möglich, das Gefühl von Geräumigkeit und Helligkeit.
Und wenn wir vom Erdgeschoss sprechen, sprechen wir von Gärten: Von der Terrasse zum Garten und vom Garten zur Terrasse. Mehr als ein Haus in Jávea, ein Lebensstil, der offen für die Natur ist.
Die Wohnungen im Erdgeschoss mit Garten ermöglichen es, dass jede Wohnung über eine eigene Grünfläche verfügt, und die gegenüberliegenden Terrassen erlauben es Ihnen, für das Frühstück, das Mittag- oder das Abendessen einen Moment der Sonne oder des Schattens zu wählen.
(*) Diese Informationen können Irrtümer enthalten und sind nicht Bestandteil eines Vertrages Das Angebot kann ohne Ankündigung geändert oder zurückgezogen werden. Der Preis beinhaltet nicht die Kosten für den Kauf.
