Villa in Puerta Fenicia, Jávea

1.095.000 €

358m2,
978m2 perceel,
3 kamers,
3 Badkamers

Partida Comunes – Adsubia, Jávea/Xàbia | Villa – REF. V-334

Hedendaagse Villa met Mediterrane Ziel in Puerta Fenicia, Jávea

Hoog gelegen in Puerta Fenicia, waar de Middellandse Zee samenkomt met sinaasappelvelden, de Montgó en een open hemel, staat deze nieuw voltooide villa: een minimalistisch ontwerp dat speelt met licht, strakke lijnen en natuurlijke materialen zoals steen en hout. Een modern, elegant huis voor wie rust zoekt… zonder stijl op te geven.

Een Levensstijl Die Binnen en Buiten Verbonden Houdt

De villa biedt 159 m² woonruimte en bijna 200 m² terrassen, allemaal vloeiend met elkaar verbonden.

Op de bovenverdieping valt het daglicht rijkelijk binnen in de woon–eetkamer via grote ramen die het landschap omlijsten als een schilderij. Het 40 m² grote open terras vormt een natuurlijke verlenging van de leefruimte: ideaal voor zonovergoten ontbijten, diners bij zonsondergang of simpelweg genieten van de veranderende kleuren van de Montgó.

De moderne, volledig uitgeruste keuken geeft toegang tot een overdekt terras dat doorloopt naar een tweede buitenterras. Een perfecte setting om te koken met uitzicht of gasten te ontvangen. Verder is er een wasruimte en een gastentoilet.

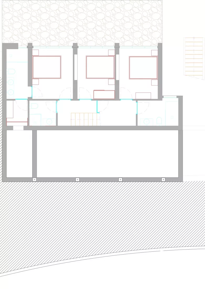
Een Benedenverdieping Voor Volledige Rust

De benedenverdieping – bereikbaar via de interne trap of de panoramische lift – is gewijd aan de slaapvertrekken.

Hier vind je drie tweepersoonsslaapkamers, allemaal met directe toegang tot het 60 m² grote terras, waar een Balinese pergola een heerlijke ontspanningsplek creëert.

De hoofdslaapkamer beschikt over een en-suite badkamer en kleedruimte, terwijl de overige kamers ook eigen badkamers hebben.

Voor de slaapkamers ligt het 12×4 m zwembad en een kleine tuinzone.

Modern Comfort in Elk Detail

De villa is uitgerust voor comfort het hele jaar door:

  • Airconditioning via kanalen
  • Aerothermie voor warm water
  • Tijdloze, natuurlijke materialen

Geweldige Locatie

Op slechts 5 minuten van alle voorzieningen, de oude stad van Jávea en het Arenal-strand.


Je wordt verliefd omdat…

  • De panoramische uitzichten de hele dag indrukwekkend zijn.
  • De helderheid en ruimte ongeëvenaard zijn.
  • De vloeiende overgang tussen binnen en buiten ideaal is voor mediterraan wonen.
  • Het moderne ontwerp met natuurlijke materialen warmte en stijl geeft.
  • Alle drie de slaapkamers direct toegang tot het zwembad hebben.
  • De Balinese pergola een droomplek is om te ontspannen.
  • Puerta Fenicia rust en privacy biedt, dicht bij alles.
  • En natuurlijk het 12×4 m zwembad, dat gewoon onweerstaanbaar is.

Deze woning maakt deel uit van de exclusieve selectie van MORAGUESPONS Mediterranean Houses, specialisten in luxevilla's in Jávea. Een collectie woningen waar locatie, licht en de mediterrane levensstijl samenkomen om een unieke kans op de vastgoedmarkt van de Costa Blanca te creëren.

Zwembad
Terras
Tuin
Garage
Noord
Verwarming
Airconditioning
Nieuw of tweedehands
2024
EPC: In behandeling

(*) Deze informatie kan fouten bevatten en maakt geen deel uit van een contract. Het aanbod kan zonder voorafgaande kennisgeving worden gewijzigd of ingetrokken. De prijs is exclusief de aankoopkosten.

Partida Comunes – Adsubia