Sale plot urbanized in Javea
€ 250,000
Imagine living in one of the most privileged areas of Jávea, just a few minutes’ walk from the historic center, surrounded by peace and quiet, with spectacular views of the Montgó and the hermitage of Santa Llúcia.
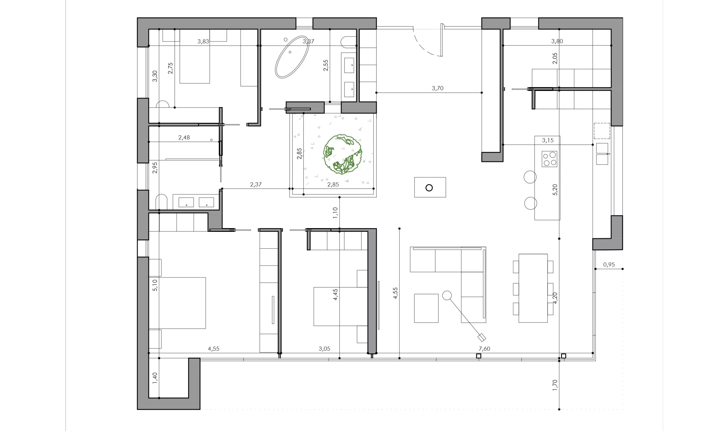
This unique plot offers much more than land: it includes a project and license to build a contemporary villa, southeast facing and designed to enjoy Mediterranean light from sunrise to sunset.
A home with modern lines, large windows and open spaces that connect the interior with nature, where every corner is designed for comfort and the lifestyle you deserve.
Forget about paperwork and waiting: here you have the opportunity to start building your home in Jávea from day one, in an
(*) This information may be subject to errors and does not form part of any contract The offer may be changed or withdrawn without notice. The price does not include the costs of the purchase.
