• Reservado

Parcela a la venta con proyecto y licencia incluidos

250.000 €

2.061m2

Montgó – Partida Tosal, Jávea/Xàbia | Terreno – REF. S-1503

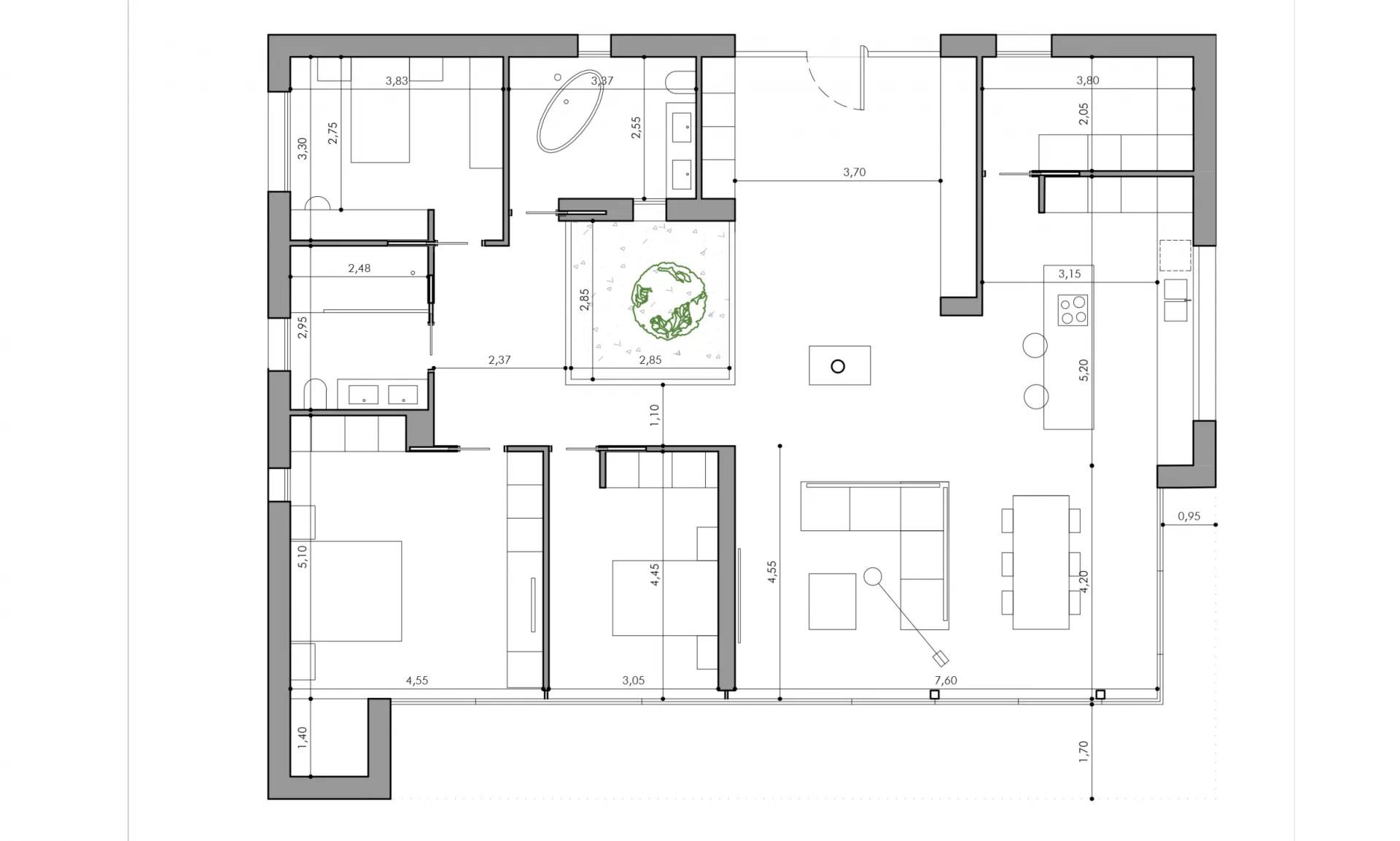
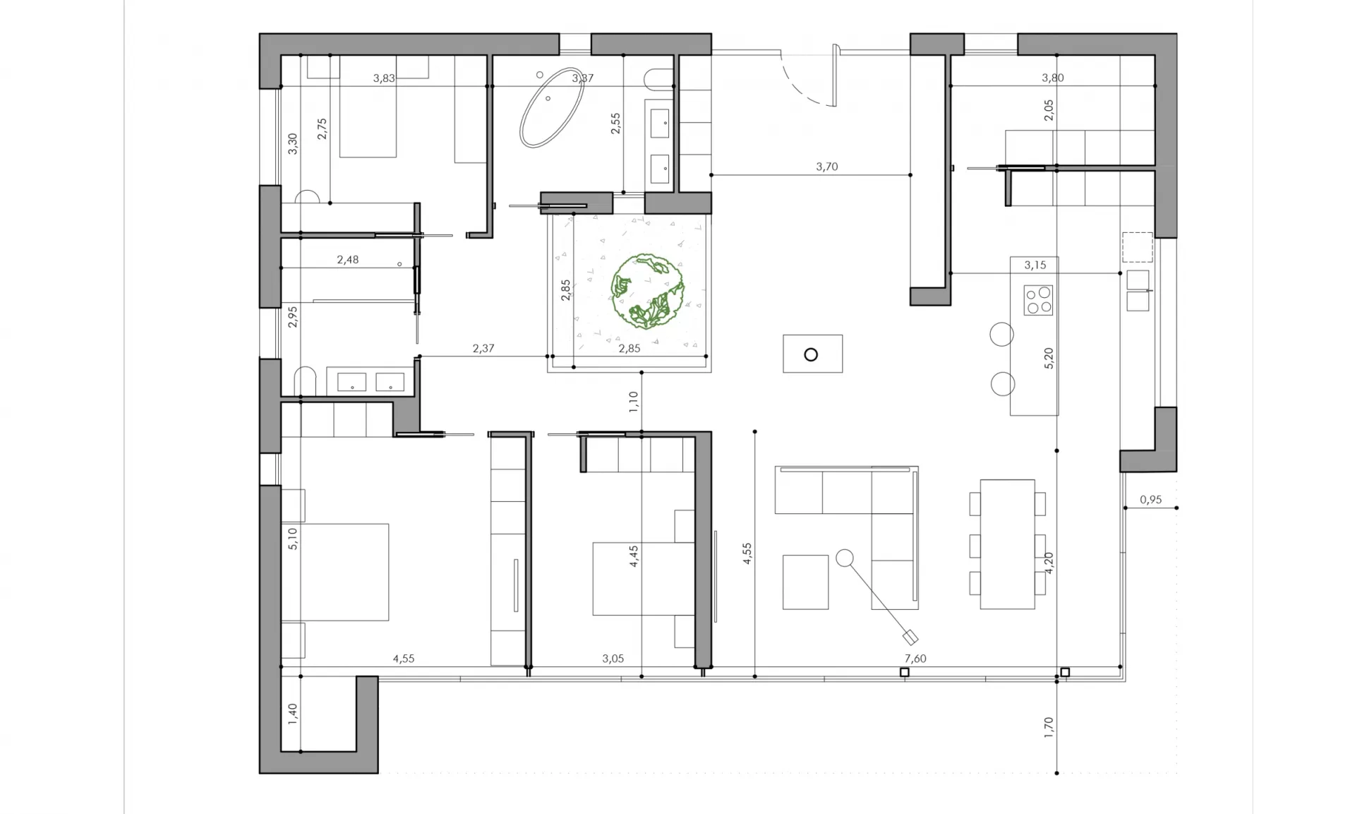
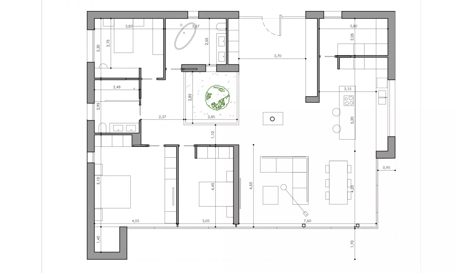
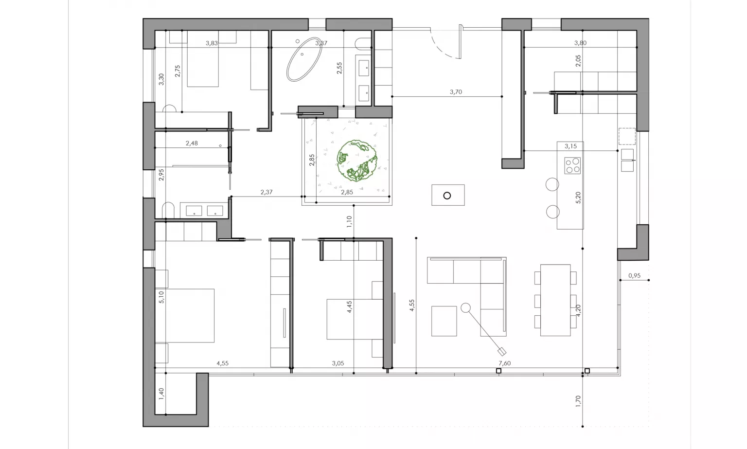
Tu villa moderna en Castellans, Jávea, empieza aquí 

Imagina vivir en una de las zonas más privilegiadas de Jávea, a tan solo unos minutos andando del centro histórico, rodeado de tranquilidad, con vistas espectaculares al Montgó y a la ermita de Santa Llúcia.

Esta parcela única te ofrece mucho más que un terreno: incluye proyecto y licencia para levantar una villa de diseño contemporáneo, orientada al sureste y pensada para disfrutar de la luz mediterránea desde el amanecer hasta el atardecer.

Un hogar con líneas modernas, grandes ventanales y espacios abiertos que conectan el interior con la naturaleza, donde cada rincón está diseñado para el confort y el estilo de vida que mereces.

Olvídate de trámites y esperas: aquí tienes la oportunidad de empezar a construir tu casa en Jávea desde el primer día, en una ubicación inmejorable que combina paz, proximidad al pueblo y unas vistas que enamoran.

(*) Esta información puede estar sujeta a errores y no forma parte de ningún contrato. La oferta puede ser modificada o retirada sin previo aviso. El precio no incluye los gastos de la compra.

Ubicación en el mapa y servicios alrededor

Montgó – Partida Tosal