Villa a la venta en Jávea cerca del Tossalet

650.000 €

166m2,
667m2 parcela,
3 Hab.,
3 Baños

Jávea/Xàbia | Villa – REF. V-1394

Ca la Brisa – Tu refugio mediterráneo en Jávea

Imagina despertar cada día rodeado de calma, sol y el auténtico encanto mediterráneo. Esta villa, situada cerca de El Tossalet y a pocos minutos en coche de la playa del Arenal, combina estilo, eficiencia y comodidad en un entorno privado que te hará sentir de vacaciones los 365 días del año.

Te encantará por…

  • Su atmósfera cálida y mediterránea, con espacios que invitan a relajarte desde el primer paso.
  • La privacidad absoluta, sin renunciar a estar cerca de todo.
  • La piscina profunda de hasta 3 metros, ideal para refrescarte, nadar o simplemente desconectar.
  • La eficiencia energética: paneles solares, aerotermia y un mantenimiento muy cómodo.
  • La versatilidad de sus espacios: oficina independiente, zona infantil, casitas auxiliares… todo pensado para un día a día práctico.

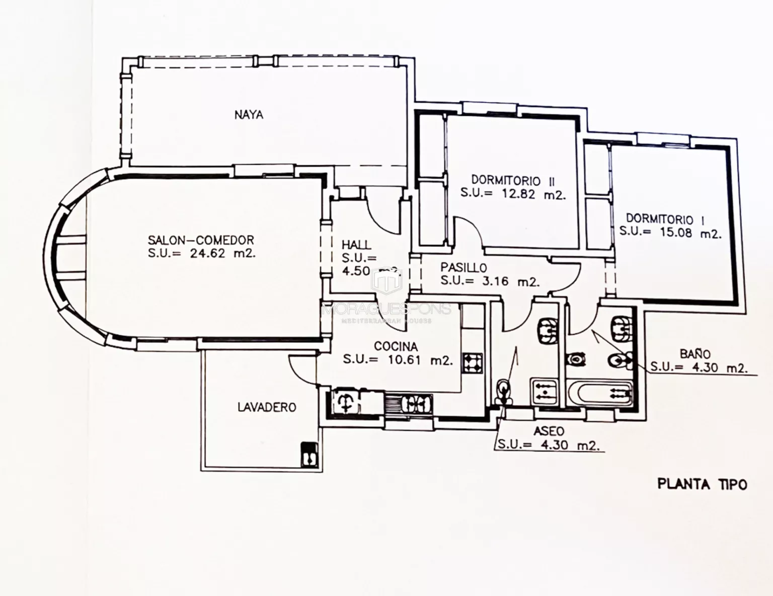
Espacios diseñados para vivir bien

Planta baja:

Un amplio garaje con puerta eléctrica y cargador para coche eléctrico —con control remoto desde el móvil— te da la bienvenida. En este nivel encontrarás también una oficina independiente con aire acondicionado y baño propio, perfecta como despacho privado, estudio creativo o dormitorio para invitados. Además, cuenta con una encantadora zona de juegos infantil.

Planta principal:

Se accede a través de una agradable terraza cubierta, ideal para desayunar con el sol de la mañana o cenar al aire libre.

En el interior, un luminoso salón-comedor con estufa noruega Jøtul y aire acondicionado crea un ambiente acogedor todo el año.

La cocina, recientemente renovada y equipada con electrodomésticos Siemens, combina funcionalidad y diseño.

En este nivel, dos dormitorios dobles —ambos con aire acondicionado— y dos baños (uno en suite) completan la zona de descanso. Todo listo para entrar a vivir.

Exterior: tu propio oasis mediterráneo

El exterior está pensado para disfrutar sin complicaciones:

  • Piscina privada de gran profundidad (hasta 3 m), perfecta para nadadores y amantes del agua.
  • Jardín de bajo mantenimiento con riego automático, fuente decorativa y rincones que invitan a relajarse.
  • Tres casitas auxiliares, cada una con su función: sala técnica de piscina y riego, sala de control de paneles solares con depósito de agua caliente de 200 L por aerotermia, y un trastero independiente.
  • Mosquiteras, persianas en dormitorios, antenas parabólicas con múltiples canales y todo lo necesario para vivir con comodidad.

En resumen, esta villa es ideal si buscas…

  • Privacidad, luz y un entorno tranquilo.
  • Una casa lista para entrar, con reformas recientes y excelentes calidades.
  • Eficiencia energética y bajo mantenimiento.
  • Espacios flexibles que se adaptan a tu estilo de vida.
  • Proximidad a la playa del Arenal, servicios y zonas residenciales privilegiadas de Jávea.

Esta propiedad forma parte de la exclusiva selección de MORAGUESPONS Mediterranean Houses, especialistas en villas de lujo en Jávea. Una colección de hogares donde la ubicación, la luz y el estilo de vida mediterráneo se alinean para crear una oportunidad inmobiliaria única en la Costa Blanca.

Piscina
Terraza
Jardín
Garaje
Trastero
Norte, Oeste
Paneles solares
Bomba de calor
Aire acondicionado
Recién reformado
CEE: En trámite

(*) Esta información puede estar sujeta a errores y no forma parte de ningún contrato. La oferta puede ser modificada o retirada sin previo aviso. El precio no incluye los gastos de la compra.

Ubicación en el mapa y servicios alrededor

Jávea/Xàbia